Visure Catastali

NESSUN ABBONAMENTO RICHIESTO!
Come funziona il servizio
-
Compila il modulo online con i dati dell'immobile o dell'intestatario;
-
Conferma la richiesta e procedi al pagamento in modo sicuro;
-
Ricevi la visura catastale ufficiale via e-mail in pochi minuti, in formato PDF.
A cosa serve la Visura Catastale?
- Identificazione del bene: Permette di identificare in modo preciso un immobile, fornendo informazioni come la sua superficie, la categoria catastale e il redditò imponibile.
- Verifica della proprietà: Consente di accertare chi è il legittimo proprietario dell'immobile e la sua storia giuridica.
- Transazioni immobiliari: È spesso richiesta in fase di acquisto o vendita di un immobile per garantire la trasparenza della transazione.
- Contenziosi legali: Può essere utilizzata come prova in casi di dispute legali riguardanti proprietà.
Per ottenere una visura catastale è possibile utilizzare i nostri servizi online disponibili, che garantiscono un accesso rapido e sicuro ai dati richiesti.
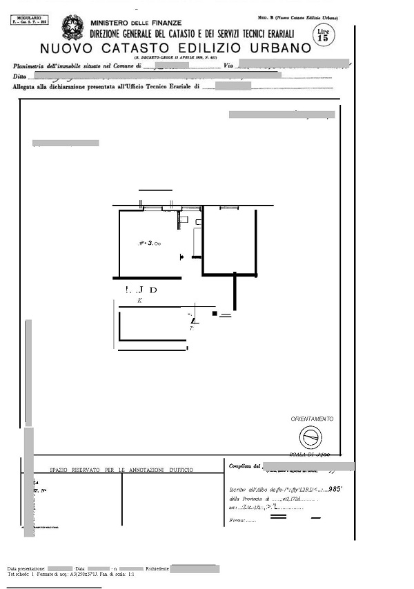
Cos'è una Visura Catastale?
Le visure catastali sono documenti ufficiali che contengono informazioni relative ai beni immobili registrati nel catasto. Questi documenti sono fondamentali per avere una chiara visione delle proprietà, dei diritti e degli obblighi legati a un immobile.
Tipologie di Visure Catastali
- Visura Ordinaria: Fornisce informazioni generali sull'anno di registrazione, la rendita catastale e i dati identificativi dell'immobile.
- Visura Storica: Consente di ottenere informazioni sui passaggi di proprietà e le modifiche avvenute nel tempo.
- Visura per Immobile: Dettaglia le caratteristiche specifiche di un immobile, come la superficie e la categoria catastale.
Domande frequenti (FAQ)
Quanto tempo serve per ricevere la visura catastale?
In genere entro pochi minuti lavorativi.
La visura catastale ha valore legale?
Sì, il documento è rilasciato dai registri ufficiali dell'Agenzia delle Entrate e ha piena validità.
Posso richiedere una visura catastale anche se non sono il proprietario?
Sì, la visura catastale è pubblica e può essere richiesta da chiunque.
Cosa dicono di noi i nostri clienti
- "Servizio veloce e preciso. Ho ricevuto la visura in meno di 5 minuti. Ottimo" - Marco A., Milano
- "Ho evitato un acquisto rischioso grazie alla visura catastale ottenuta su Visure Altea" - Franco G., Palermo
- "Ho ricevuto tutte le informazioni necessarie per procede all'acquisto. Personale gentile e diponibile" - Giulio F., Grosseto
- "Con il vs. servizio ho ricevuto la mia visura anche di Domenica in tempi rapidi. Complimenti" - Mario L., Perugia
- "Servizio veloce e professionale. Continuerò ad essere vostro cliente!" - Giovanni L., Torino
Whatsapp 348 19 61 914
Tel 0828 43 23 80
e-mail info@visurealtea.it
Pagamenti sicuri con:

























